Beschrijving

Fijne gezinswoning met vier slaapkamers en praktische indeling
Deze nette tussenwoning aan de Collot d’Escurystrjitte 9 in Minnertsga biedt een praktische indeling, vier slaapkamers en volop mogelijkheden om de woning naar eigen wens te moderniseren. Een comfortabele gezinswoning met verrassend veel ruimte, gelegen op een rustige locatie in het dorp.

Indeling

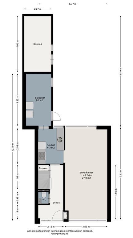
Via de entree kom je in de hal met trapopgang en toegang tot het toilet. Vanuit de hal bereik je de lichte woonkamer met voldoende ruimte voor een gezellige zithoek en eethoek. Aansluitend bevindt zich de keuken voorzien van enkele inbouwapparatuur en doorgang naar de bijkeuken. De bijkeuken is ideaal voor extra bergruimte en de opstelling van witgoed.

Eerste verdieping

De overloop geeft toegang tot vier slaapkamers en de badkamer. De badkamer is voorzien van douche en wastafel.

Tweede verdieping

De bergzolder is bereikbaar via een vlizotrap en biedt praktische opslagruimte. Hier bevindt zich tevens de opstelling van de C.V.-ketel (Intergas, 2020).

Tuin

De achtertuin is ruim en beschikt over een aangebouwde berging, ideaal voor fietsen, tuingereedschap en opslag.

Locatie
De woning is gelegen in een rustige woonstraat in Minnertsga. Het dorp beschikt over diverse voorzieningen, waaronder een basisschool, sportverenigingen en een winkel voor dagelijkse boodschappen. Daarnaast zijn Franeker, Harlingen en Leeuwarden goed bereikbaar.

Bijzonderheden

•	Tussenwoning met vier slaapkamers
•	Energielabel A
•	Voorzien van 8 zonnepanelen
•	Veel opslagruimte dankzij bijkeuken, zolder en aangebouwde berging
•	Gelegen in een rustige woonomgeving

Zie jij jezelf hier al wonen? Vraag dan eenvoudig een bezichtiging aan via Funda en ontdek de mogelijkheden van deze woning.

Kenmerken