Beschrijving

Op zoek naar een karaktervolle woning met slaapkamer beneden en veel mogelijkheden?
In Oudebildtzijl staat deze sfeervolle twee-onder-een-kapwoning met veel potentie. Dankzij een slaapkamer en badkamer op de begane grond, ruime garage, 30 zonnepanelen en HR++ beglazing kun je hier comfortabel gelijkvloers wonen of beneden een werk- of hobbyruimte realiseren. Met wat modernisering maak je van deze woning een sfeervol thuis helemaal naar eigen smaak.

Indeling

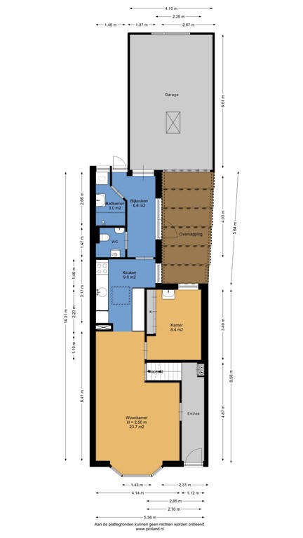
Je komt binnen via de entree/hal met trapopgang naar de eerste verdieping. De woonkamer is licht en voorzien van airconditioning. Aansluitend vind je de keuken met lichtkoepel en toegang tot kelder. Op de begane grond bevindt zich daarnaast een slaapkamer met wastafel en kastenwand, ideaal voor gelijkvloers wonen.

De bijkeuken biedt toegang tot zowel de zij- als achtertuin en is voorzien van een toiletruimte met hangend toilet, fonteintje, cv-installatie (Intergas, 2015), een zonneboiler en een mechanische ventilatiebox. Vanuit de bijkeuken bereik je ook de badkamer met douche, wastafel en aansluiting voor de wasmachine. De garage met elektrische deur en zolderruimte is eveneens via de bijkeuken bereikbaar. Aan de zijkant van de woning bevindt zich een overkapping voor de garage.

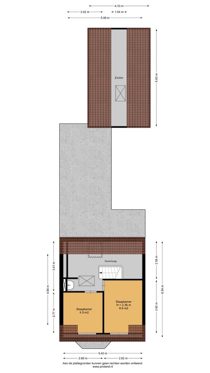
Eerste verdieping

De overloop, voorzien van wastafel en Velux dakraam, geeft toegang tot twee slaapkamers, beide voorzien van een dakkapel.

Tweede verdieping

Via een vlizotrap op de overloop is de bergzolder bereikbaar. Deze biedt extra bergruimte.

Tuin

De beschutte achtertuin ligt op het oosten en biedt mogelijkheden tot het creëren van een fijne buitenruimte. De zijtuin is voorzien van overkapping.

Locatie
De woning staat in het karakteristieke dorp Oudebildtzijl, in de gemeente Waadhoeke. Een plek met historie, rust en ruimte, maar ook voorzieningen op korte afstand. Vanuit hier bereik je snel St.-Annaparochie en Leeuwarden.

Bijzonderheden

•	Grotendeels voorzien van kunststof kozijnen en HR++ beglazing
•	30 zonnepanelen en zonneboiler
•	Woonkamer met airconditioning
•	Keuken met lichtkoepel en toegang tot kelder
•	Slaapkamer en badkamer op de begane grond, ideaal voor gelijkvloers wonen
•	Eerste verdieping met twee slaapkamers voorzien van dakkapel en overloop met wastafel
•	Bergzolder bereikbaar via vlizotrap
•	Garage met elektrische deur en zolderruimte

Nieuwsgierig naar de mogelijkheden van deze woning? Plan een bezichtiging via Funda of onze website en ontdek zelf wat dit huis te bieden heeft.

Kenmerken