Beschrijving

Ben jij op zoek naar een woning met karakter, ruimte én uitzicht? Dan is deze dijkwoning uit 1910 aan de Oudebildtdijk 1206 in de Westhoek een kans die je niet wilt missen! 

Gelegen op een ruim perceel van 315 m² (eigen grond), midden in het uitgestrekte Bildtse landschap, biedt deze charmante woning een unieke combinatie van historie, comfort en landelijke rust. Ideaal voor wie op zoek is naar een fijne plek om thuis te komen.

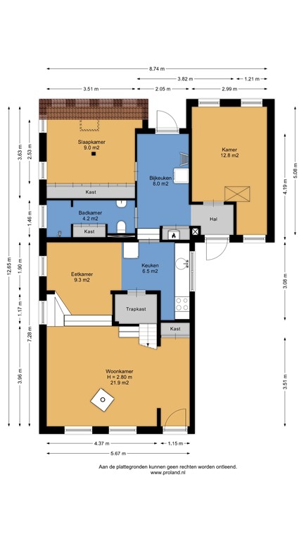
Indeling

De woning verwelkomt je met een charmante woonkamer, waar je direct de fijne sfeer en het open karakter van het huis ervaart. Via de woonkamer kom je in de eetkamer met keuken. De keuken is uitgerust met diverse inbouwapparatuur, waaronder een 4-pits gaskookplaat, afzuigkap, vaatwasser en een combimagnetron. Onder de keuken bevindt zich een kelder – ideaal voor voorraad of opslag.

Via de bijkeuken heb je zowel toegang tot de tuin als een aparte hal die leidt naar de oprit en een extra werkkamer – een fijne plek voor thuiswerken, hobby’s of als logeerkamer. 
Vanuit de bijkeuken bereik je ook de badkamer, die is voorzien van een douche, wastafelmeubel, hangend toilet en designradiator. Aan de achterzijde van de woning bevindt zich de slaapkamer op de begane grond met uitzicht op de tuin en een Velux dakraam, wat zorgt voor veel lichtinval.

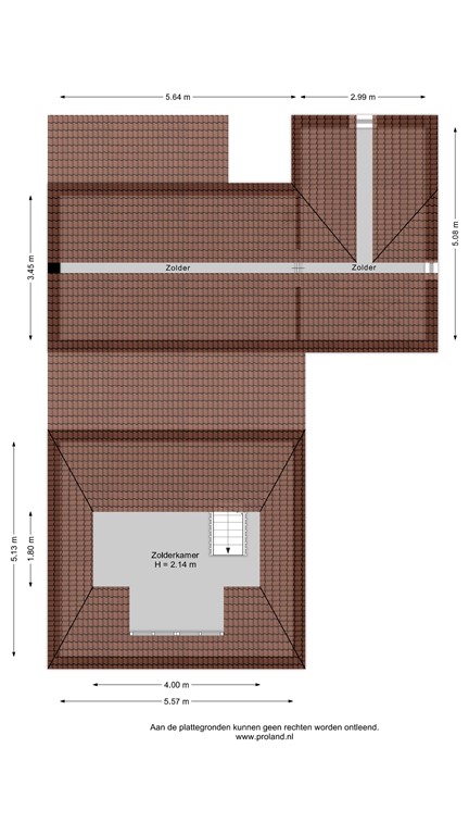
Eerste verdieping

Via de trap in de woonkamer kom je bij een ruime zolderkamer met dakkapel, perfect als slaapkamer, logeerruimte of creatieve werkplek.

Tuin

De diepe achtertuin biedt volop privacy en een schitterend vrij uitzicht over de omliggende landerijen. Of je nu graag in de tuin werkt of juist op zoek bent naar een fijne buitenruimte voor het hele gezien – deze plek biedt het allemaal. Daarnaast zijn er twee bergingen voor extra opslagruimte of het uitvoeren van klussen.

Locatie
De woning ligt aan de karakteristieke Oudebildtdijk in het rustige en landelijke Westhoek, omringd door uitgestrekte weilanden en nabij de Waddenzee. Hier woon je in alle rust, maar toch met goede verbindingen naar omliggende dorpen en steden zoals St.-Annaparochie en Leeuwarden. Geniet van de prachtige fiets- en wandelroutes.

Bijzonderheden

•	Authentieke dijkwoning met veel karakter en sfeer
•	Vrijstaand gelegen met volop privacy
•	Vrij uitzicht over de landerijen en nabij de Waddenzee
•	Zowel slaap- als badkamer op de begane grond – levensloopbestendig wonen mogelijk
•	Grotendeels voorzien van dubbel en HR++ glas
•	Extra (werk)kamer met eigen toegang via de hal
•	Twee praktische bergingen in de achtertuin

Dus… waar wacht je nog op?
Deze charmante dijkwoning in de Westhoek wacht op jou. Maak van jouw woondromen werkelijkheid en creëer jouw eigen stukje geluk. We laten je het graag zien!

Interesse?

Op dit moment zijn alle bezichtigingsmomenten volgeboekt. We plaatsen u graag op de RESERVELIJST. Mocht er een plek vrijkomen dan nemen we direct contact met u op . 


Aanmelden hiervoor kan via Funda of onze website.

Kenmerken